THE 90

Die HBY SolarYacht kombiniert mit ihrem modernen Yachtdesign das exklusive Yachtfeeling einer Superyacht mit dem einzigartigen Wohngefühl eines Penthouses auf dem Wasser. 

Die standardmäßige 360° Panoramaverglasung bietet einen unvergleichbaren Blick aufs Wasser.

Das Highlight der HBY ist eine Dachterrasse wie auf einer Megayacht mit einer innovativen Solaranlage. 

Das Sonnendeck kann mit optionaler outdoor Lounge und Kitchen mit BBQ Grill, Esstisch, Cocktail-Bar, Sonnenliegen und Whirlpool zu einem Beachclub ausgestattet werden.

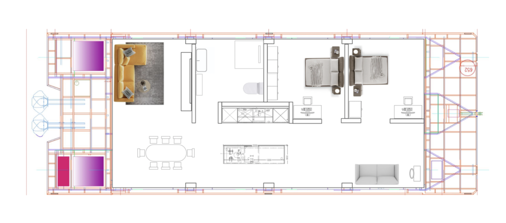
90m²

Grundfläche

16,50m x 6m

Länge x Breite

295.000 €

Grundpreis

SolarYacht setzt neue Standards

Jedes HouseBoatYacht Modell verfügt standardmäßig über ein smartes Solarsystem. Innovative Batterien speichern den selbst produzierten Solarstrom für eine nachhaltige und autarke Boardstromversorgung. 

Standardmäßig fährt jede HBY mit effizienten Benzinmotoren.  Optional kann jede HBY Modell mit innovativen 48V Elektromotoren ausgestattet werden. 

Penthouse mit 360° Seeblick

Jede HBY verfügt standardmäßig über eine 360° Panoramaverglasung für einen individuellen Grundriss mit dem ultimativen Seeblick.

Alle HBY Modelle sind konstruiert wir eine Loft mit Aluminiumfenstern, so dass der Grundriss individuell nach Kundenwunsch gestaltet werden kann. 

Standardmäßig verfügt jedes HBY über einen großen Salon mit offener Küche, einen Masterbedroom und ein  Gästezimmer. 

Made in Germany

Vom Aluminiumrumpf bis zur Stahlkonstruktion mit Verglasung erfolgt die Herstellung und Montage der modernen HBY Flotte in unserer Werft in Brandenburg. 

Das einzigartige Design der HBY wird gestaltet von namhaften Designern und ist beim Deutschen Marken und Patentamt (DPMA) registriert.  

Exklusive Sonderausstattung

Wir bauen Ihren Traum vom nachhaltigen Leben auf dem Wasser nach Ihren individuellen Wünschen. Sonderwünsche wie Sauna, Heimkino, Badewannen, Stromgeneratoren etc. realisieren wir im Bauprozess mit unseren Spezialisten.  Konfigurieren Sie Ihre individuelle HBY mit optionale Zusatzausstattung. 

Fragen Sie Ihr individuelles Angebot an

Vereinbaren Sie einen Besichtigungstermin

Fragen Sie Ihr individuelles Angebot an

Vereinbaren Sie einen Besichtigungstermin